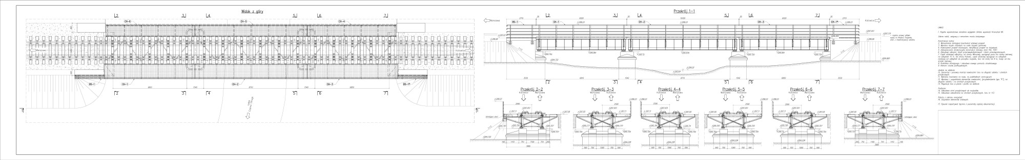
Our projects: Bridges and viaducts
Modernisation of a railway bridge at km 14.170, line No. 144
- The inventory of the existing bridge elements and surrounding with detailed photographic documentation
- Assessment of the current technical condition
- Static and strength calculations of the construction
- Workshop documentation of the strengthening (using a steel shell structure) of the span construction
- Executive documentation of planned repairs on site
- Workshop documentation of the facility equipment elements
Modernisation of a railway bridge at km 49.077, line No. 117
- The inventory of the existing bridge elements and surrounding with detailed photographic documentation
- Assessment of the current technical condition
- Static and strength calculations of the construction
- Workshop documentation of the strengthening of the span structure
- Executive documentation of planned repairs on site
- Workshop documentation of the facility equipment elements
Modernisation of a railway bridge at km 15.581, line No. 81
- The inventory of the existing bridge elements and surrounding with detailed photographic documentation
- Static and strength calculations of the construction with the guidelines for adapting the span to the applicable standards
- Project of the bridge load testing
- Workshop documentation of the adaptation of the span
- Workshop documentation of the facility equipment elements
- Executive documentation of planned repairs on site
- Technological design for the assembly of the truss span
- Detailed Technical Specifications for the execution and acceptance of the planned renovation works
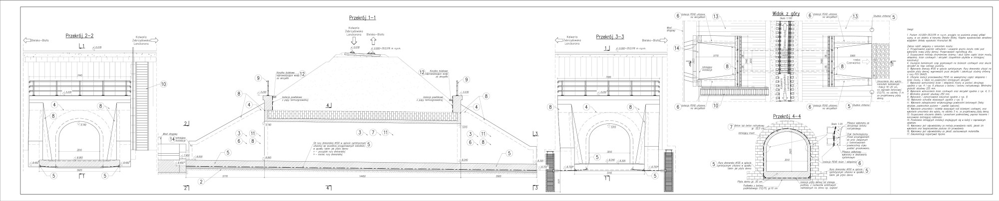
Modernisation of a railway viaduct at km 22.936, line No. 137
- The inventory of the existing bridge elements and surrounding with detailed photographic documentation
- Assessment of the current technical condition
- Static and strength calculations of the new spans
- Workshop documentation of the new span structure
- Project of the bridge load testing
- Executive documentation of planned repairs on site
- Workshop documentation of the facility equipment elements
- Detailed Technical Specifications for the execution and acceptance of the planned renovation works
Modernisation of a railway bridge at km 271.533 tor 1, line No. 7
- The inventory of the existing bridge elements and surrounding with detailed photographic documentation
- Static and strength calculations of the truss span of the bridge
- Project of the strengthening of the span structure
- Project of the bridge load testing
- Workshop documentation of the strengthening of the span structure
- Workshop documentation of the facility equipment elements
- Executive documentation of planned repairs on site
- Detailed Technical Specifications for the execution and acceptance of the planned renovation works
Modernisation of a railway viaduct at km 1.022, line No. 144
- The inventory of the existing bridge elements and surrounding with detailed photographic documentation
- Assessment of the current technical condition
- Assessment of the load capacity of the existing construction in lines No. 33, 34 and 114
- Workshop documentation of the new span structure
- Workshop documentation of the facility equipment elements
- Executive documentation of planned repairs on site
- Detailed Technical Specifications for the execution and acceptance of the planned renovation works
Modernisation of a railway viaduct at km 10.917, line No. 152
- The inventory of the existing bridge elements and surrounding with detailed photographic documentation
- Assessment of the current technical condition
- Static and strength calculations of the construction
- Executive documentation of planned repairs on site including strengthening of the abutments
- Workshop documentation of the facility equipment elements
Modernisation of a railway viaduct at km 13.078, line No. 154
- The inventory of the existing bridge elements and surrounding with detailed photographic documentation
- Assessment of the current technical condition
- Static and strength calculations of the construction
- Executive documentation of planned repairs on site
- Workshop documentation of the facility equipment elements
Modernisation of a railway viaduct at km 12.158, line No. 154
- The inventory of the existing bridge elements and surrounding with detailed photographic documentation
- Assessment of the current technical condition
- Static and strength calculations of the construction
- Executive documentation of planned repairs on site
- Workshop documentation of the facility equipment elements
Modernisation of a railway viaduct at km 7.320, line No. 154
- The inventory of the existing bridge elements and surrounding with detailed photographic documentation
- Assessment of the current technical condition
- Static and strength calculations of the construction
- Executive documentation of planned repairs on site
- Workshop documentation of the facility equipment elements
Executive documentation of the temporary spans' structures on the railway viaduct at km 23.494, line No. 138
- The inventory of the existing viaduct elements and surrounding
- Static and strength calculations of the temporary spans of the viaduct
- Technological project for the demolition and renovation of the viaduct
- Project of the bridge load testing
- Detailed Technical Specifications for the execution and acceptance of the planned renovation works
- Executive documentation of planned repairs on site
- Workshop documentation of the spans structures
- Workshop documentation of the facility equipment elements
Modernisation of a railway bridge at km 262.148, line No. 1
- Executive and workshop documentation
- The inventory of the existing bridge elements and surrounding
- Determining the condition of the existing structure and the possibility of its repair
- Executive documentation of planned repairs on site
- Workshop documentation of the strengthening of the span structure
- Workshop documentation of the facility equipment elements
Modernisation of the riveted plate girder viaduct at km 21.790, line No. 144
- The inventory of the existing viaduct elements and surrounding with detailed photographic documentation
- Assessment of the load capacity of the existing construction
- Static and strength calculations of the new span of the viaduct
- Workshop documentation of the new span structure
- Workshop documentation of the facility equipment elements
- Executive documentation of planned repairs on site
Modernisation of a railway bridge at km 0.149, line No. 703
- The inventory of the existing bridge elements and surrounding with detailed photographic documentation
- Assessment of the load capacity of the existing construction
- Project of the bridge load testing
- Workshop documentation of the strengthening of the steel span structure
- Workshop documentation of the facility equipment elements
- Executive documentation of planned repairs on site
- Detailed Technical Specifications for the execution and acceptance of the planned renovation works
Modernisation of a railway bridge at km 26.212, line No. 181
- Executive and workshop documentation
- The inventory of the existing bridge elements and surrounding
- Determining the condition of the existing structure and the possibility of its repair
- Executive documentation of planned repairs on site
- Workshop documentation of the facility equipment elements
Modernisation of a railway bridge at km 77.761, line No. 30
Static calculations, construction and working documentation of a steel railway bridge
- Cataloguing of the existing elements
- Static and strength calculations of the new span of the bridge – composite construction
- Working plans of the new span
- PN-EN documentation and calculations in Polish language
Modernisation of a railway bridge at km 51.804, line No. 30
Static calculations, construction and working documentation of a steel railway bridge
- Cataloguing of the existing elements
- Verification of the bearing capacity of the existing structure
- Static and strength calculations of the new span of the bridge (including fatigue and numerical stability verification)
- Working plans of the new span and construction documentation
- PN-EN documentation and calculations in Polish language
Modernisation of a railway bridge at km 246.687, line No. 7
Static calculations, construction and working documentation of a steel railway bridge
- Cataloguing of the existing elements
- Static and strength calculations of the new span of the bridge – concrete-covered girders
- Working and construction plans of the new span with abutments
- PN-EN documentation and calculations in Polish language
Modernisation of a railway bridge at km 70.293, line No. 30
Static calculations, construction and working documentation of a steel railway bridge
- Cataloguing of the existing elements
- Static and strength calculations of the new span of the bridge – steel girders with orthotropic plate
- Working and construction plans of the new span with abutments
- PN-EN documentation and calculations in Polish language
Modernisation of a railway bridge at km 65.405, line No. 30
Static calculations, construction and working documentation of a steel railway bridge
- Cataloguing of the existing elements
- Static and strength calculations of the new span of the bridge – steel girders with orthotropic plate
- Working and construction plans of the new span with abutments
- PN-EN documentation and calculations in Polish language
Repair of railway bridges in lines No. 7, 69, 26 and 143
Construction documentation for various railway objects (bridges, overpasses, ducts)
- Cataloging of the existing objects
- Determination of the technical condition of the existing structure and repair options
- Verification of the bearing capacity of the existing structures
- Executive documentation for repair works on railway objects






















































































